S67 INLINE SLIDING – ALUK
Geometry system
- Depth: 67mm
- Max. Leaf Height: 2700mm
- Max Leaf Width: 3000mm
- Max Vent Weight: 200kg
Thermal performance
- U-value (Double Glazing) Ug = 1.0W/m2K / 1.4W/m2K
Maximum Glass Thickness
- 24-32mm
Acoustic Performance
30-40dB
Interested in our products?
- Request an offer now!
Description
Experience outstanding thermal performance with U-values as low as 1.4 W/m²K when double glazed, helping to improve energy efficiency and maintain indoor comfort all year round.
Security is never compromised, thanks to a robust multi-point locking system that provides reliable protection and peace of mind. The low-threshold design ensures smooth, effortless access, making it practical for everyday use.
With its sleek, contemporary appearance, the S67 Inline sliding door complements a wide variety of architectural styles. Whether you’re upgrading your home or creating a striking new entrance, it offers a perfect balance of performance, style, and functionality.
Flush Innovation
Features
- Mitre cut frame
- Standard and reinforced interlock available
- Glazing Gaskets available in Black
- Low Threshold 22mm
- Maximum weight per leaf of 200kg
- Glazing sizing range of 24mm – 32mm
- Multipoint lock Single or dual colour with textured or anodised finishes
- 2 to 6 sash configurations are available
- Double and Triple track options are available
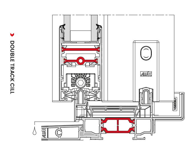
Cross-Section
TECHNICAL DATA:
| Performances | |
|---|---|
| U value W/m²K (Double glazing) : | 1.4 W/m²K |
| Air tightness (Pa) : | A4 |
| Water tightness (Pa) : | 9A |
| Wind load (Pa) : | B3 |
| Size limits | |
| Max Vent Weight : | 200 kg |
| Max Frame Height : | 2700 mm |
| Sightline (Head) : | 107.1 mm |
| Sightline (Cill) : | 107.1 mm |
| Sightline (Jamb) : | 112.6 mm |
| Max glass thickness (mm) : | 24 – 32 mm |
| Max sash width (mm) : | 3000 mm |
| Features | |
| Sightlines : | 35 mm |
| Dual color option : | ✅ |
| Multi-point locking : | ✅ |