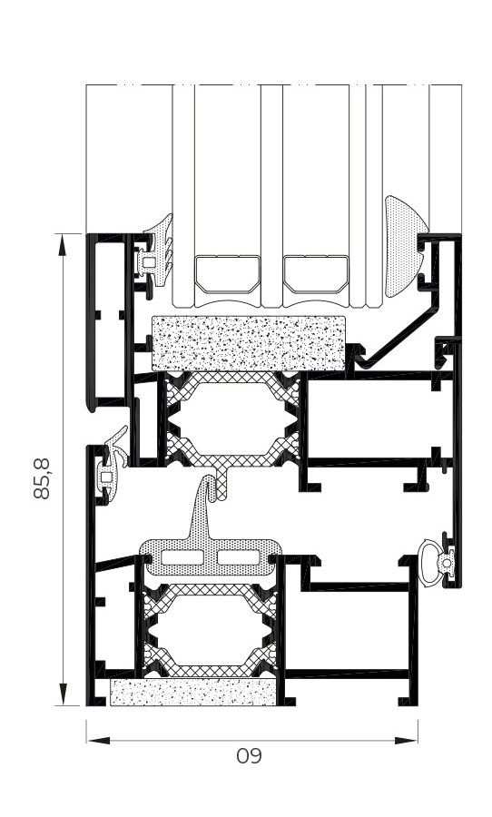
CORTIZO 60
Geometry system
- Depth: 60 mm
- Visible height: 85,8 mm
- Central node: 133,8 mm
- Dim. Max. Sash: W 1500mm / H 2600mm
- Max weight sash: 160 kg
Thermal performance
- UW ≥ 1.0 W/m2K
Maximum Glass Thickness
- 46mm
Acoustic Performance
- 48dB
Interested in our products?
- Request an offer now!
Cortizo
Description
Cortizo 60 is a highly versatile window and door system, with a frame depth of 60 mm and a sash depth of 68 mm.
Advantages
- Available in almost 800 different colors and textures, including imitations of wood and anodizing.
TECHNICAL DATA
Glazing
- Max. 46 mm
- Min. 5 mm
Opening possibilities
- Inward opening
- Side hung
- Tilt & turn
- Bi-fold Tilt & parallel
- Bottom hung
Outward opening
- Side hung
- Top hung
- Pivoting on horizontal or vertical axis
Sightlines
- Frame 60 mm
- Sash 68 mm
Profile thickness
- Window 1.6 mm
- Door 1.6 mm
Polyamide strip length
- 24 mm
Maximum sash dimensions
- Width (L) 1,500 mm
- Height (H) 2,600 mm
Maximum sash weight
- 160 kg
Aesthetic possibilities
- Sash: Straight or curved / Bead: Straight or curve
Consult maximum weight and dimensions according to typologies.
Finishes
PERFORMANCE:
Air Resistance:
- Class 4
Water Resistance:
- Class E1200
Wind Resistance:
- Class C5
CHARACTERISTICS:
UW from:
- 1,0 W/m2k
Acoustic Performance:
- 48 dB
Types of Typologies Inward Opening:
- Side hung, Tilt & Turn, Bi-fold, Tilt & Parallel, Bottom hung.
Outward Opening:
- Side hung, Top hung, Pivoting on horizontal or vertical axis.
- Possibility of dual colour system.
Get a cost for your project!
Ready to bring your vision to life?
Contact our team to get a personalised quote for your windows and doors project.
To book a visit to our office in Hemel Hempstead and explore our full range of products, please schedule an appointment with one of our agents, using below contact details.
Visits are available strictly by appointment only.
- Landline: 03334559016
- WhatsApp: 07936565921
- Email: office@sbwgroup.co.uk
- Showroom: Enterprise House, Maxted Road, Hemel Hempstead, HP2 7BT.
What customers say about us?
Sbw Group LTD
4.4
10 Reviews

We have used SBW on several occasions…
We have used SBW on several occasions over the years and always found their services very good, hence I’m a repeat customer. I’ve had bifold and sliding patio doors, front door, other exterior doors and replacement double glazing windows. Quality products, great customer service and aftercare.
Was very impressed both by the service…
Was very impressed both by the service and the product. After a bad experience with a previous window company, which you could feel the draft coming through after one month of instalation, I was skeptical to try different company. I am thrilled I found SBW GROUP. I had my windows done in April 2024 and the quality is above my expectations. The installation team was very organised, professional and considerate and we are very pleased with the results. Highly recommend them.
I recommend this with trust and was…
I recommend this with trust and was very happy with the doors I purchased from this brand
Sbw Group LTD
4.4
10 Reviews

We have used SBW on several occasions…
We have used SBW on several occasions over the years and always found their services very good, hence I’m a repeat customer. I’ve had bifold and sliding patio doors, front door, other exterior doors and replacement double glazing windows. Quality products, great customer service and aftercare.
Was very impressed both by the service…
Was very impressed both by the service and the product. After a bad experience with a previous window company, which you could feel the draft coming through after one month of instalation, I was skeptical to try different company. I am thrilled I found SBW GROUP. I had my windows done in April 2024 and the quality is above my expectations. The installation team was very organised, professional and considerate and we are very pleased with the results. Highly recommend them.
I recommend this with trust and was…
I recommend this with trust and was very happy with the doors I purchased from this brand







